7256:MS ラフィスタ調布多摩川
賃料 | 10.25万円 |
---|---|
共益費・管理費 | 15,000円 |
所在地 | 調布市多摩川5-10-2 |
交通 | 京王線 調布駅まで 徒歩14分 京王線 京王多摩川まで 徒歩3分 |
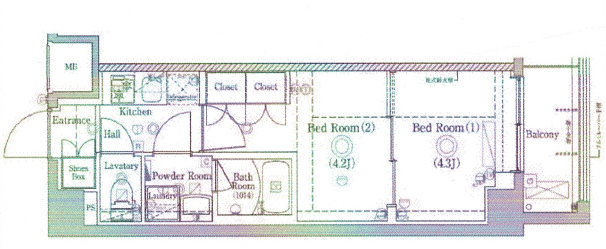
間取 | 2K |
総戸数 | |
面積 | 25.52m²(7.71坪) |
築年月 | 2020/07 |
敷金 | 1ヶ月 |
---|---|
礼金 | 1ヶ月 |
保証金 | - |
建物構造 | 鉄筋コンクリート造 |
所在階 | 7階/7階建 |
学区 | 小学校区:富士見台小学校 中学校区:第五中学校 |
取引態様 | 仲介 |
更新 | 可 2年 更新料:新賃料1.5ヶ月分 |
敷引・償却 | - |
---|---|
火災保険 | 要加入23,000円 保険期間2年 |
保証会社 | 必須 |
駐車場 | |
諸費用 | 初回保証料58,750円 24時間サポート21,450円 抗菌消毒代17,600円 鍵交換費用22,000円 |
入居時期 | 相談 |
特色
独立洗面台、洋室、バストイレ別、収納、二階以上、保証会社必須、バルコニー、エアコン、室内洗濯機置場、コンロ2口以上、温水洗浄便座、オートロック、エレベータ、宅配ボックス、システムキッチン、浴室乾燥機、インターネット無料、モニター付インターホン、CS、BS、駐輪場、最上階、ガスキッチン、短期違約金有
コメント
京王多摩川駅徒歩3分の築浅高級分譲賃貸マンションです。またお探ししている人にはうれしいペット可で室内設備も充実しています♪周辺施設:タウンドラッグ53m ローソン120m ファミリーマート373m
周辺地図
位置情報に関するご注意:現在位置情報は精査中の為、正確ではない場合があります。あくまで参考程度の情報となります。