7677:MS レディアス調布国領
| 賃料 | 7.1万円 |
|---|---|
| 共益費・管理費 | 10,000円 |
| 所在地 | 調布市国領町4-45-7 |
| 交通 | 京王線 国領駅まで 徒歩4分 |
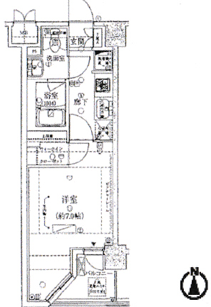
| 間取 | 1K |
| 総戸数 | 63戸 |
| 面積 | 25.06m²(7.58坪) |
| 築年月 | 2008/03 |
| 敷金 | - |
|---|---|
| 礼金 | - |
| 保証金 | - |
| 建物構造 | 鉄筋コンクリート造 |
| 所在階 | 1階/6階建 |
| 学区 | |
| 取引態様 | 仲介 |
| 更新 | 可 2年 更新料:新賃料1ヶ月分+事務手数料5000円 |
| 敷引・償却 | - |
|---|---|
| 火災保険 | 要加入18,000円 保険期間2年 |
| 保証会社 | 必須 エポスカード |
| 駐車場 | 要確認 |
| 諸費用 | 初回保証料40,500円 月額保証料810円 24時間サポート16,500円 鍵交換費用44,000円 |
| 入居時期 | 即時 |
特色
バストイレ別、バルコニー、洋室、収納、WIクローゼット、エアコン、室内洗濯機置場、オートロック、エレベータ、宅配ボックス、最上階、コンロ2口以上、温水洗浄便座、駐輪場、バイク置場、保証会社必須、システムキッチン、駐車場、CATV、BS、CS、インターネット対応、退去時清掃費用負担有、短期違約金有、独立洗面台、ガスキッチン、角部屋、外国籍相談可
コメント
分譲賃貸マンションなので設備に関しても非常に整った物件です! また国領駅から明るい狛江通りを歩いて少しだけ奥に入っているので住環境も抜群だし通りに出るとドラッグストアもあるし生活便利賃貸マンションですね♪ ※バイク置場あり3000円/月、駐車場あり14000円/月(要確認)
周辺地図
位置情報に関するご注意:現在位置情報は精査中の為、正確ではない場合があります。あくまで参考程度の情報となります。













