7797:AP ミハス調布菊野台
| 賃料 | 12.9万円 |
|---|---|
| 共益費・管理費 | 8,000円 |
| 所在地 | 調布市菊野台1-14-4 |
| 交通 | 京王線 柴崎駅まで 徒歩2分 |
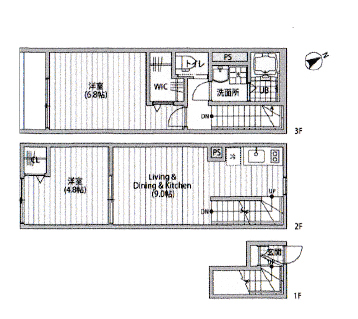
| 間取 | 2LDK |
| 総戸数 | |
| 面積 | 53.41m²(16.15坪) |
| 築年月 | 2017/02 |
| 敷金 | - |
|---|---|
| 礼金 | 1ヶ月 |
| 保証金 | - |
| 建物構造 | 鉄骨造 |
| 所在階 | 2階/3階建 |
| 学区 | 小学校区:調和小学校 中学校区:第六中学校 |
| 取引態様 | |
| 更新 | 可 2年 更新料:新賃料1ヶ月分 |
| 敷引・償却 | - |
|---|---|
| 火災保険 | 要加入20,000円 保険期間2年 |
| 保証会社 | 必須 オリコフォレント |
| 駐車場 | |
| 諸費用 | 初回保証料137,000円 月額保証料2,055円 鍵交換費用19,800円 24時間サポート1,320円 |
| 入居時期 | 2026年04月下旬 |
特色
バストイレ別、独立洗面台、洋室、収納、二階以上、保証会社必須、室内洗濯機置場、エアコン、コンロ2口以上、システムキッチン、温水洗浄便座、インターネット無料、浴室乾燥機、ガスキッチン、駐車場、モニター付インターホン、バルコニー、外国籍相談可
コメント
柴崎徒歩2分の駅近マンションで1階の玄関から内階段でお部屋に入るので戸建ての感覚です。またエントランスのアプローチがとてもオシャレなのが印象的です♪※インターネット無料 駐車場あり。
周辺地図
位置情報に関するご注意:現在位置情報は精査中の為、正確ではない場合があります。あくまで参考程度の情報となります。








